الانتفاضة//الحجوي محمد
في خطوة تعكس العزم على إعادة الحيوية للمرافق الحيوية بالمدينة، أعلن السيد نورالدين ايت الحاج، رئيس جماعة قلعة السراغنة، عن اكتمال الدراسة الخاصة بإعادة تأهيل المسبح البلدي، وذلك في إطار مشروع طموح لتأهيل البنيات التحتية الرياضية وتحسين جودة الخدمات المقدمة للساكنة.

وكشف المجلس الجماعي، أنه تمكن على مدى ثلاث سنوات من العمل المتواصل والتدبير المسؤول، من تعبئة الغلاف المالي اللازم لإنجاز أشغال الإصلاح، وهو ما يعكس إرادة جادة لإعادة هذا المرفق الحيوي إلى وظيفته الأساسية، خصوصاً لفئة الشباب والأطفال الذين طالما انتظروا عودة الحياة إلى هذا الفضاء الرياضي والترفيهي.

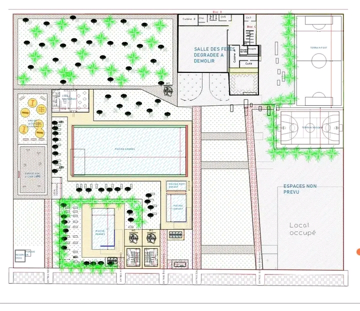
وفي إطار الشفافية والانفتاح على المواطنات والمواطنين، أفاد المصدر ذاته أنه سيتم الإعلان عن صفقة أشغال إعادة التأهيل مع بداية شهر ماي المقبل، وفق المساطر القانونية الجاري بها العمل، كما تم وضع التصميم الهندسي الخاص بالمسبح رهن إشارة الساكنة، تعزيزاً لحق المواطن في المعلومة.

واختتم رئيس الجماعة تصريحه بالتأكيد على الحرص على إخراج هذا المشروع إلى حيز الوجود في أقرب الآجال، مهيباً بالجميع تفهم طبيعة الأشغال المرتقبة وما قد تفرضه من تدابير مرحلية، خدمة للمصلحة العامة، في انتظار أن يعود المسبح ليكون قبلة للشباب والعائلات والرياضيين بالمدينة.
